BLOG
2020年07月26日 [仲介手数料無料 名古屋]
名古屋市北区東味鋺新築戸建2号棟2,999万円仲介手数料無料!

【新築・住宅・仲介手数料無料・名古屋市北区東味鋺2丁目】
★名古屋市北区東味鋺2丁目新築戸建全5棟!建設・設計住宅性能評価所得・耐震等級最高3です!
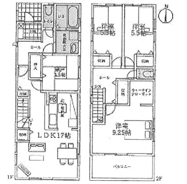
●2号棟4LDK●2,999万円
●駐車並列2台可能+ウォークインクローゼット+南側庭で日当たり良好!
●名鉄小牧線「味鋺」駅徒歩4分 ●敷地38.17坪●2020年4月完成
●味鋺小学校・北中学校
●本物件(仲介手数料1,055,670円が無料です!)
費用を抑えたい方・予算が心配な方・住宅ローンが心配な方・他社で住宅ローンが通らない方・是非ご相談下さい!ホームページ掲載以外の物件も仲介手数料0円ですのでお気楽にお問い合わせください!物件価格の変更及び契約済の場合がありますので予めご了承ください。

2号棟2,999万円仲介手数料無料!


【仲介手数料が安い!】
ホームページ掲載物件以外も仲介手数料0円になりますのでお気楽にお問い合わせください!物件価格の変更及び契約済の場合はご了承ください。
新築住宅を安く買う方法

