BLOG
2019年10月06日 [仲介手数料無料 名古屋]
名古屋市名東区植園町新築戸建1号棟3,390万円仲介手数料無料!

【新築・住宅・仲介手数料無料・名古屋市名東区植園町】
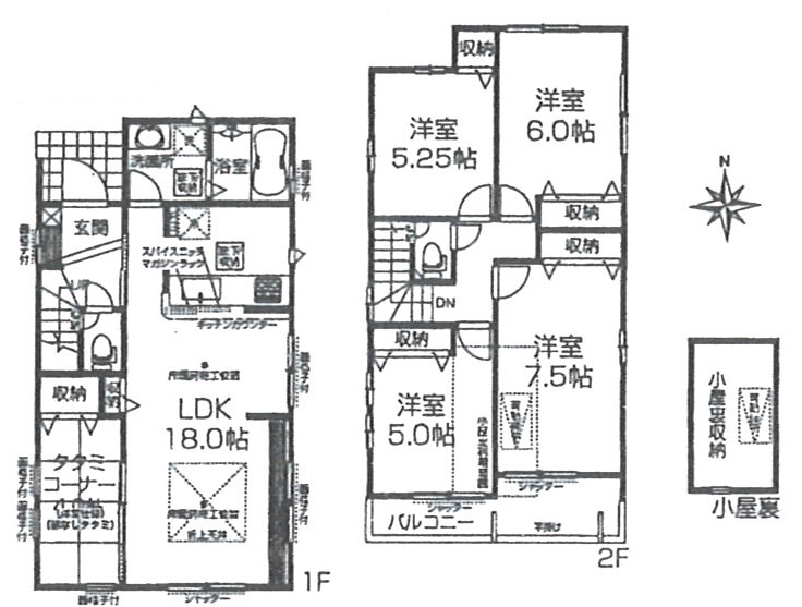
名古屋市名東区植園町3丁目新築戸建全3棟!長期優良住宅認定住宅です!設計・建設性評価取得で地震に強い耐震等級最高3取得!1号棟4LDK+リビングとタタミコーナーで22帖+小屋裏収納付き+食洗器・床暖房が標準装備●3,390万円●地下鉄東山線「星ヶ丘」駅徒歩14分 ●敷地28.63坪●、令和1年6月完成●西山小学校・神丘中学校 ●本物件(仲介手数料1,184,700円が無料です!)費用を抑えたい方・予算が心配な方・住宅ローンが心配な方・他社で住宅ローンが通らない方・是非ご相談下さい!ホームページ掲載以外の物件も仲介手数料0円ですのでお気楽にお問い合わせください!物件価格の変更及び契約済の場合がありますので予めご了承ください。

1号棟3390万円仲介手数料無料!


【仲介手数料が安い!】
ホームページ掲載物件以外も仲介手数料0円になりますのでお気楽にお問い合わせください!物件価格の変更及び契約済の場合はご了承ください

