BLOG
2019年10月04日 [仲介手数料無料 名古屋]
名古屋市守山区森孝新築戸建2号棟2,790万円仲介手数料無料!

【新築・住宅・仲介手数料無料・名古屋市守山区森孝】
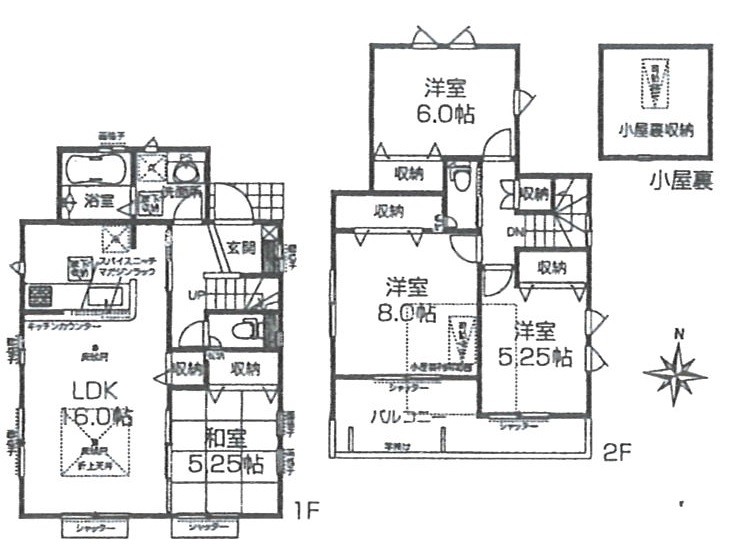
名古屋市守山区森孝1丁目新築戸建全3棟!長期優良住宅認定住宅です!設計・建設性評価取得で地震に強い耐震等級最高3取得!2号棟4LDK+駐車2台可能+小屋裏収納付き+食洗器・床暖房が標準装備●3,390万円●名鉄瀬戸線「大森・金城学園前」駅徒歩21分 ●敷地39.66坪●、令和1年7月完成●森孝西小学校・森孝中学校 ●本物件(仲介手数料1,184,700円が無料です!)費用を抑えたい方・予算が心配な方・住宅ローンが心配な方・他社で住宅ローンが通らない方・是非ご相談下さい!ホームページ掲載以外の物件も仲介手数料0円ですのでお気楽にお問い合わせください!物件価格の変更及び契約済の場合がありますので予めご了承ください。

2号棟3,390万円仲介手数料無料!
.


【仲介手数料が安い!】
ホームページ掲載物件以外も仲介手数料0円になりますのでお気楽にお問い合わせください!物件価格の変更及び契約済の場合はご了承ください

