BLOG
2019年08月03日 [仲介手数料無料 名古屋]
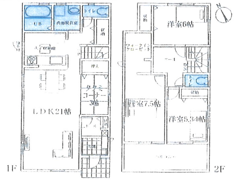
津島市愛宕町新築戸建1号棟2,380万円仲介手数料無料!

【新築・住宅・仲介手数料無料・津島市愛宕町】
津島市愛宕町新築戸建全8棟!1号棟3LDK+ウォークインクローゼット+設計・建設住宅性能評価取得住宅です!地震に強い耐震等級3+駐車並列3台可能+南向きで日当たり良好+リビングとタタミコーナーで24帖!●2,380万円●名鉄尾西線「日比野」駅徒歩12分 ●敷地62.20坪、令和1年5月完成●南小学校・暁中学校 ●本物件(仲介手数料835,920円が無料です!)費用を抑えたい方・予算が心配な方・住宅ローンが心配な方・他社で住宅ローンが通らない方・是非ご相談下さい!ホームページ掲載以外の物件も仲介手数料0円ですのでお気楽にお問い合わせください!物件価格の変更及び契約済の場合がありますので予めご了承ください。

1号棟2,380万円仲介手数料無料!


【仲介手数料が安い!】
ホームページ掲載物件以外も仲介手数料0円になりますのでお気楽にお問い合わせください!物件価格の変更及び契約済の場合はご了承ください

