BLOG
2019年08月01日 [仲介手数料無料 名古屋]
名古屋中川区富田町新築戸建2号棟2,780万円仲介手数料無料!

【新築・住宅・仲介手数料無料・名古屋市中川区富田町】
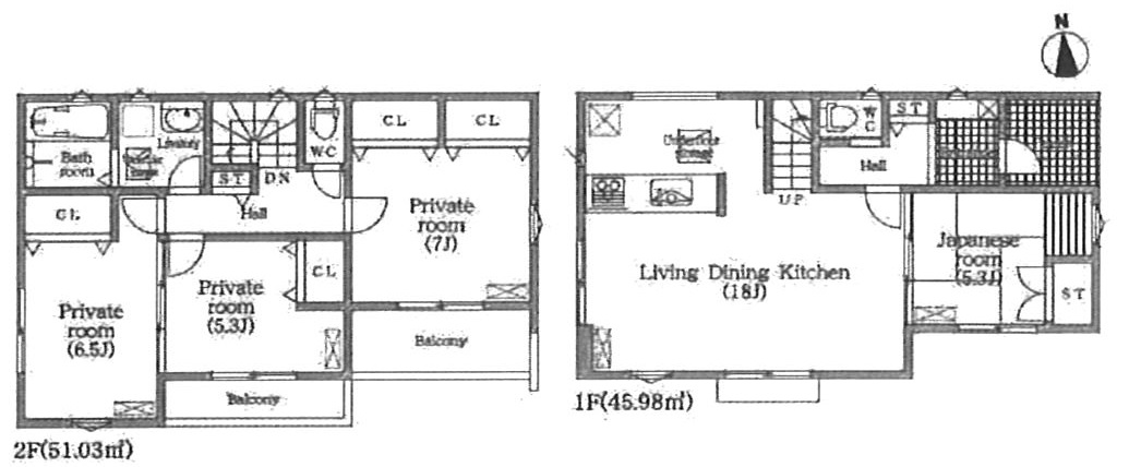
名古屋市中川区富田町新築戸建全4棟!2号棟4LDK+フラット35SAプラン適合住宅の住宅です!地震に強いダイライト工法+駐車並列2台可能+省エネ給湯器エコジョーズ+リビングと和室が続き間で22帖+食洗器・リビング床暖房つき!●2,780万円●JR関西本線「春田」駅徒歩21分 ●敷地36.67坪、令和1年9月完成予定●千音寺小学校・はとり中学校 ●本物件(仲介手数料965,520円が無料です!)費用を抑えたい方・予算が心配な方・住宅ローンが心配な方・他社で住宅ローンが通らない方・是非ご相談下さい!ホームページ掲載以外の物件も仲介手数料0円ですのでお気楽にお問い合わせください!物件価格の変更及び契約済の場合がありますので予めご了承ください。

2号棟2,780万円仲介手数料無料!


【仲介手数料が安い!】
ホームページ掲載物件以外も仲介手数料0円になりますのでお気楽にお問い合わせください!物件価格の変更及び契約済の場合はご了承ください

