BLOG
2018年11月23日 [仲介手数料無料 名古屋]
名古屋市緑区鳴海町新築戸建5号棟3,890万円仲介手数料無料!

【新築・住宅・仲介手数料無料・名古屋市緑区鳴海町】
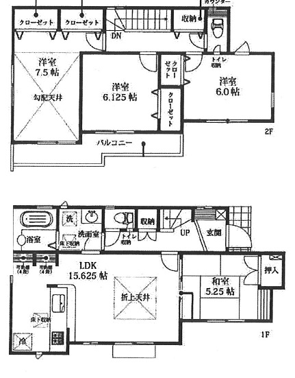
名古屋市緑区鳴海町赤塚新築戸建全6棟!5号棟4LDK+設計・建設住宅性能評価取得!安心の耐震等級最高3の住宅です!リビングと和室が続き間で20.87帖+北東角地で全室南向き・食洗器つき+駐車並列2台可能+長期優良住宅です●3,890万円●地下鉄桜通線「野並」駅徒歩19分 ●敷地34.91坪、平成31年1月完成予定●片平小学校・千鳥丘中学校 ●本物件(仲介手数料1,325,160円が無料です!)費用を抑えたい方・予算が心配な方・住宅ローンが心配な方・他社で住宅ローンが通らない方・是非ご相談下さい!ホームページ掲載以外の物件も仲介手数料0円ですのでお気楽にお問い合わせください!物件価格の変更及び契約済の場合がありますので予めご了承ください。

5号棟3,890万円仲介手数料無料!


【仲介手数料が安い!】
ホームページ掲載物件以外も仲介手数料0円になりますのでお気楽にお問い合わせください!物件価格の変更及び契約済の場合はご了承ください

