BLOG
2018年11月05日 [仲介手数料無料 名古屋]
名古屋市天白区中平5丁目新築戸建2号棟3,590万円仲介手数料無料!

【新築・住宅・仲介手数料無料・名古屋市天白区】
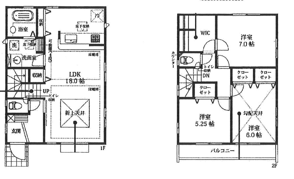
名古屋市天白区中平5丁目新築戸建全2棟!2号棟3LDK+長期優良住宅・設計・建設住宅性能評価取得!安心の耐震等級最高3の住宅です!リビング18帖+床暖房・食洗器つき+駐車2台可能+7帖の広々ウォークインクローゼット●3,590万円●地下鉄鶴舞線「原」駅徒歩23分 ●敷地37.54坪、平成30年12月完成予定●原小学校・原中学校 ●本物件(仲介手数料1,227,960円が無料です!)費用を抑えたい方・予算が心配な方・住宅ローンが心配な方・他社で住宅ローンが通らない方・是非ご相談下さい!ホームページ掲載以外の物件も仲介手数料0円ですのでお気楽にお問い合わせください!物件価格の変更及び契約済の場合がありますので予めご了承ください。

2号棟3,590万円仲介手数料無料!


【仲介手数料が安い!】
ホームページ掲載物件以外も仲介手数料0円になりますのでお気楽にお問い合わせください!物件価格の変更及び契約済の場合はご了承ください

