BLOG
2018年08月06日 [仲介手数料無料 名古屋]
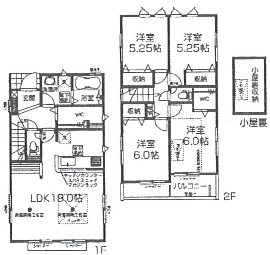
名古屋市中川区服部1新築戸建4号棟3,190万円仲介手数料無料!

【新築・住宅・仲介手数料無料・名古屋市中川区服部】
名古屋市中川区服部1丁目新築戸建全4棟!4号棟4LDK+設計・建設住宅性能評価取得!安心の耐震等級最高3の住宅です!ウォークインクローゼット+小屋裏収納+駐車並列2台可能+リビングに床暖房・食洗器標準装備●3,190万円●JR関西本線「春田」駅徒歩14分 ●敷地39.47坪、平成30年11月完成●千音寺小学校・はとり中学校 ●本物件(仲介手数料1,098,360円が無料です!)費用を抑えたい方・予算が心配な方・住宅ローンが心配な方・他社で住宅ローンが通らない方・是非ご相談下さい!ホームページ掲載以外の物件も仲介手数料0円ですのでお気楽にお問い合わせください!物件価格の変更及び契約済の場合がありますので予めご了承ください。

4号棟3,190万円仲介手数料無料!



【仲介手数料が安い!】
ホームページ掲載物件以外も仲介手数料0円になりますのでお気楽にお問い合わせください!物件価格の変更及び契約済の場合はご了承ください

