BLOG
2018年07月05日 [仲介手数料無料 名古屋]
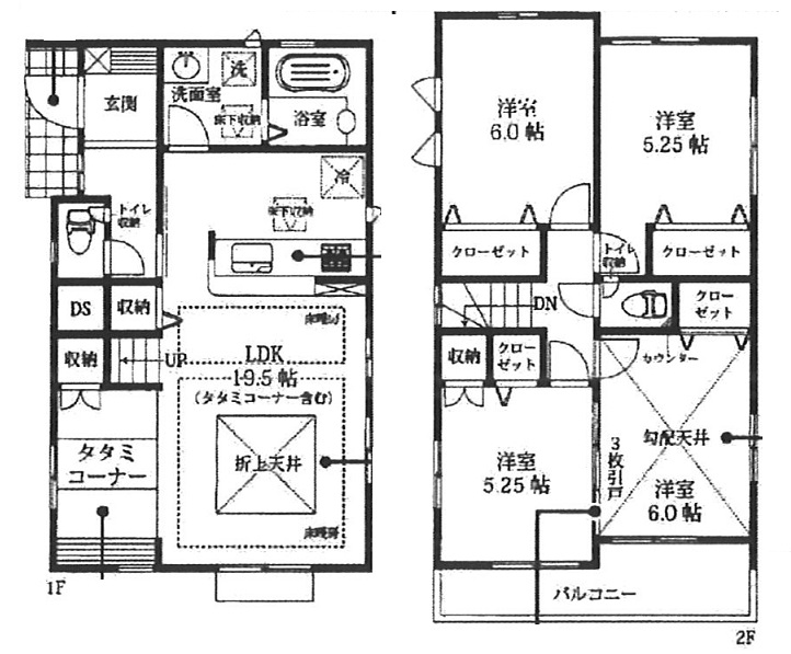
名古屋市北区如意町2新築戸建1号棟3,290万円仲介手数料無料!

【新築・住宅・仲介手数料無料・北区如意町2】
名古屋市北区如意町2新築戸建全2棟!安心の長期優良住宅・耐震等級最高3取得住宅です!1号棟4LDK+リビングとタタミコーナーで19.5帖+南西角地で日当たり良好+駐車並列2台可能●3,290万円●名鉄小牧線「味美」駅徒歩22分 ●敷地37.36坪、平成30年7月完成予定●楠小学校・楠中学校 ●本物件(仲介手数料1,130,760円が無料です!)費用を抑えたい方・予算が心配な方・住宅ローンが心配な方・他社で住宅ローンが通らない方・是非ご相談下さい!ホームページ掲載以外の物件も仲介手数料0円ですのでお気楽にお問い合わせください!物件価格の変更及び契約済の場合がありますので予めご了承ください。

1号棟3,290万円仲介手数料無料!


【諸費用最大60万円台で購入できます!】
ホームページ掲載物件以外も仲介手数料0円になりますのでお気楽にお問い合わせください!物件価格の変更及び契約済の場合はご了承ください

