BLOG
2018年06月09日 [仲介手数料無料 名古屋]
【仲介手数料無料】名古屋市港区茶屋新田1号棟2,790万円!

【新築・住宅・仲介手数料無料・名古屋市港区】
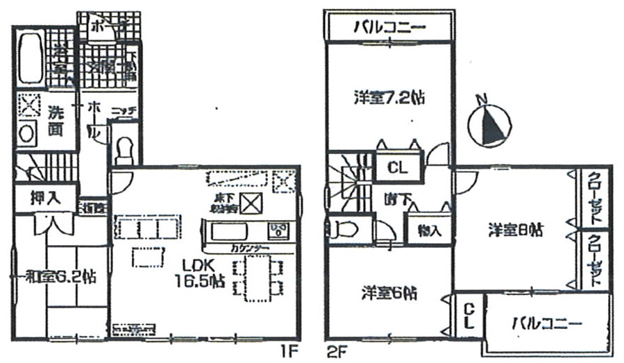
名古屋市港区茶屋新田新築戸建全4棟・安心のフラット35S省エネ基準適合住宅です!1号棟●2,790万円●4LDK+南側庭で日当たり良好・2面バルコニー+駐車並列2台可能●名古屋市バス「南陽町」停徒歩3分 ●敷地46.28坪、平成30年8月完成予定●南陽小学校・南陽東中学校 ●本物件(仲介手数料968,760円が無料です!)費用を抑えたい方・予算が心配な方・住宅ローンが心配な方・他社で住宅ローンが通らない方・是非ご相談下さい!ホームページ掲載以外の物件も仲介手数料0円ですのでお気楽にお問い合わせください!物件価格の変更及び契約済の場合がありますので予めご了承ください。

1号棟2,790万円仲介手数料無料!


ホームページ掲載物件以外も仲介手数料0円になりますのでお気楽にお問い合わせください!物件価格の変更及び契約済の場合はご了承ください

