BLOG
2018年10月22日 [中古戸建 愛知県]
小牧市入鹿出新田中古戸建2,360万円仲介手数料半額!

【江南市野白町中古戸建仲介手数料半額】
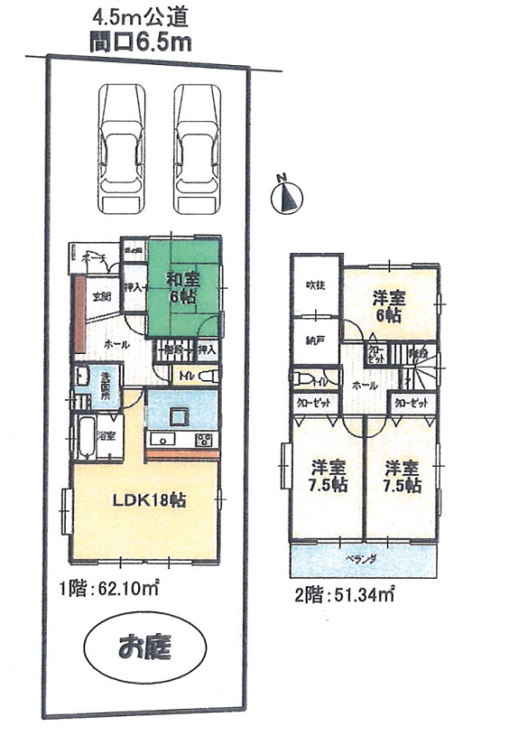
小牧市入鹿出新田中古戸建全1棟!1号棟4LDK+ウォークインクローゼット+リフォーム済でスグに利用できます!南側庭で日当たり良好+駐車並列2台可能!●2,360万円●こまき巡回バス「村中小学校北」停徒歩7分 、敷地46.06坪、平成11年4月新築●村中小学校・岩崎中学校 ●本物件(仲介手料半額対象物件です!)費用を抑えたい方・予算が心配な方・住宅ローンが心配な方・他社で住宅ローンが通らない方・是非ご相談下さい!ホームページ掲載以外の物件も仲介手数料半額ですのでお気楽にお問い合わせください!物件価格の変更及び契約済の場合がありますので予めご了承ください。

1号棟2,360万円仲介手数料半額!




【仲介手数料が安い!】
ホームページ掲載物件以外も仲介手数料割引になりますのでお気楽にお問い合わせください!物件価格の変更及び契約済の場合はご了承ください。

