BLOG
2021年07月08日 [仲介手数料無料 愛知県]
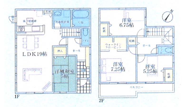
犬山市上坂町新築戸建5号棟2,990万円仲介手数料無料!

【新築・住宅・仲介手数料無料・犬山市上坂町】
★犬山市上坂町新築戸建全6棟!建設・設計住宅性能評価所得・耐震等級最高3です!
●5号棟4LDK●2,990万円
●駐車3台可能+リビング広々19帖+南側道路で日当たり良好!
●名鉄犬山線「犬山口」駅徒歩12分 ●敷地49.60坪●2021年10月完成予定!
●犬山西小学校・犬山中学校
● 本物件仲介手数料(1,052,700円が無料です!)
費用を抑えたい方・予算が心配な方・住宅ローンが心配な方・他社で住宅ローンが通らない方・是非ご相談下さい!ホームページ掲載以外の物件も仲介手数料0円ですのでお気楽にお問い合わせください!物件価格の変更及び契約済の場合がありますので予めご了承ください。

5号棟2,990万円仲介手数料無料!


【仲介手数料が安い!】
ホームページ掲載物件以外も仲介手数料0円になりますのでお気楽にお問い合わせください!物件価格の変更及び契約済の場合はご了承ください。
新築住宅を安く買う方法

