BLOG
2019年10月28日 [仲介手数料無料 愛知県]
海部郡蟹江町西之森新築戸建1号棟2,430万円仲介手数料無料!

【新築・住宅・仲介手数料無料・海部郡蟹江町西之森】
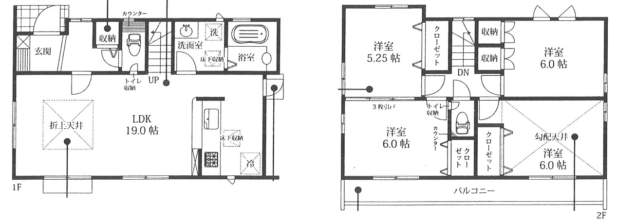
海部郡蟹江町西之森9丁目新築戸建全1棟!長期優良住宅認定住宅です!設計・建設性評価取得で地震に強い耐震等級最高3取得!1号棟4LDK+火を使わないオール電化住宅+IHクッキングヒーター+リビング広々19帖+食洗器標準装備●2,430万円●JR関西本線「永和」駅徒歩17分 ●敷地54.34坪●、令和1年7月完成●須西小学校・蟹江北中学校 ●本物件(仲介手数料867,900円が無料です!)費用を抑えたい方・予算が心配な方・住宅ローンが心配な方・他社で住宅ローンが通らない方・是非ご相談下さい!ホームページ掲載以外の物件も仲介手数料0円ですのでお気楽にお問い合わせください!物件価格の変更及び契約済の場合がありますので予めご了承ください。

1号棟2,430万円仲介手数料無料!


【仲介手数料が安い!】
ホームページ掲載物件以外も仲介手数料0円になりますのでお気楽にお問い合わせください!物件価格の変更及び契約済の場合はご了承ください

