BLOG
2019年06月17日 [仲介手数料無料 愛知県]
岩倉市西市町新築戸建2号棟3,180万円仲介手数料無料!

【新築・住宅・仲介手数料無料・岩倉市西市町小柳】
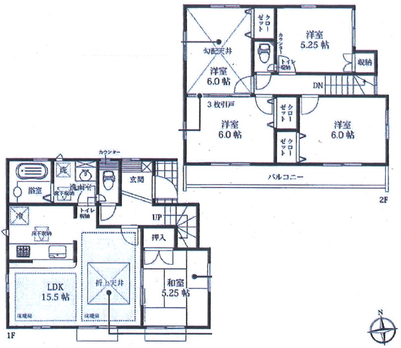
岩倉市西市町小柳新築戸建全2棟!2号棟4LDK+設計・建設住宅性能評価取得!安心の耐震等級最高3の住宅です!6項目最高等級取得+駐車2台可能+リビングと和室が続き間で20.75帖+食洗器・リビング床暖房つき!●3,280万円●名鉄犬山線「岩倉」駅徒歩13分 ●敷地42.14坪、令和1年5月完成●岩倉北小学校・岩倉中学校 ●本物件(仲介手数料1,095,120円が無料です!)費用を抑えたい方・予算が心配な方・住宅ローンが心配な方・他社で住宅ローンが通らない方・是非ご相談下さい!ホームページ掲載以外の物件も仲介手数料0円ですのでお気楽にお問い合わせください!物件価格の変更及び契約済の場合がありますので予めご了承ください。

2号棟3,180万円仲介手数料無料!


【仲介手数料が安い!】
ホームページ掲載物件以外も仲介手数料0円になりますのでお気楽にお問い合わせください!物件価格の変更及び契約済の場合はご了承ください

