BLOG
2019年05月09日 [仲介手数料無料 愛知県]
岩倉市曽野町新築戸建2,890万円仲介手数料無料!

【新築・住宅・仲介手数料無料・岩倉市曽野町】
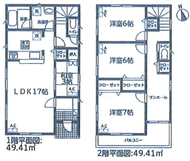
岩倉市曽野町新築戸建全4棟!繰り返す地震に効果を発揮!地震の揺れを吸収するSAFE365装備住宅です!1号棟4LDK+駐車2台可能+南西角地で日当たり良好+リビングと和室が続き間で20帖+2階にサンルーム●2,890万円●名鉄犬山線「犬山寺」駅徒歩3分 ●敷地31.20坪、平成31年2月完成予定●曽野小学校・南部中学校 ●本物件(仲介手数料1,001,160円が無料です!)費用を抑えたい方・予算が心配な方・住宅ローンが心配な方・他社で住宅ローンが通らない方・是非ご相談下さい!ホームページ掲載以外の物件も仲介手数料0円ですのでお気楽にお問い合わせください!物件価格の変更及び契約済の場合がありますので予めご了承ください。

1号棟2,890万円仲介手数料無料!


【仲介手数料が安い!】
ホームページ掲載物件以外も仲介手数料0円になりますのでお気楽にお問い合わせください!物件価格の変更及び契約済の場合はご了承ください

