BLOG
2019年03月22日 [仲介手数料無料 愛知県]
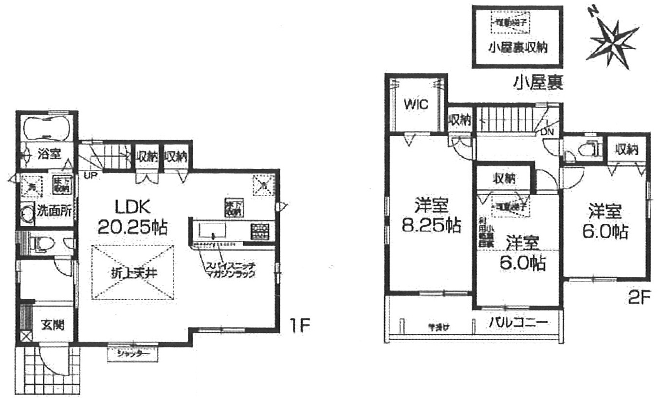
豊田市四郷町与茂田新築戸建2号棟3,290万円仲介手数料無料!

【新築・住宅・仲介手数料無料・豊田市四郷町与茂田】
豊田市四郷町与茂田新築戸建全4棟!2号棟4LDK+長期優良住宅・設計・建設住宅性能評価取得!安心の耐震等級最高3の住宅です!小屋裏収納+食洗器つき+駐車並列2台可能+リビング広々20.25帖●3,290万円●愛知環状鉄道「四郷」徒歩6分 ●敷地36.97坪、平成31年2月完成●四郷小学校・井郷中学校 ●本物件(仲介手数料1,130,760円が無料です!)費用を抑えたい方・予算が心配な方・住宅ローンが心配な方・他社で住宅ローンが通らない方・是非ご相談下さい!ホームページ掲載以外の物件も仲介手数料0円ですのでお気楽にお問い合わせください!物件価格の変更及び契約済の場合がありますので予めご了承ください。

2号棟3,290万円仲介手数料無料!


【仲介手数料が安い!】
ホームページ掲載物件以外も仲介手数料0円になりますのでお気楽にお問い合わせください!物件価格の変更及び契約済の場合はご了承ください

