BLOG
2019年01月21日 [仲介手数料無料 愛知県]
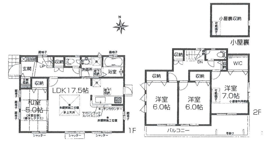
春日井市押沢台7丁目新築戸建2号棟2,730万円仲介手数料無料!

【新築・住宅・仲介手数料無料・春日井市押沢台7丁目】
春日井市押沢台2丁目新築戸建全3棟!2号棟4LDK+長期優良住宅・設計・建設住宅性能評価取得!安心の耐震等級最高3の住宅です!小屋裏収納+床暖房・食洗器つき+駐車並列2台可能+南側庭で日当たり良好●2,730万円●JR中央線「高蔵寺」バス13分 ●敷地48.17坪、平成31年1月完成予定●押沢台小学校・石尾台中学校 ●本物件(仲介手数料949,320円が無料です!)費用を抑えたい方・予算が心配な方・住宅ローンが心配な方・他社で住宅ローンが通らない方・是非ご相談下さい!ホームページ掲載以外の物件も仲介手数料0円ですのでお気楽にお問い合わせください!物件価格の変更及び契約済の場合がありますので予めご了承ください。

2号棟2,730万円仲介手数料無料!


【仲介手数料が安い!】
ホームページ掲載物件以外も仲介手数料0円になりますのでお気楽にお問い合わせください!物件価格の変更及び契約済の場合はご了承ください

