BLOG
2016年09月10日
中川区高杉町新築戸建1号棟2,790万円仲介手数料0円!

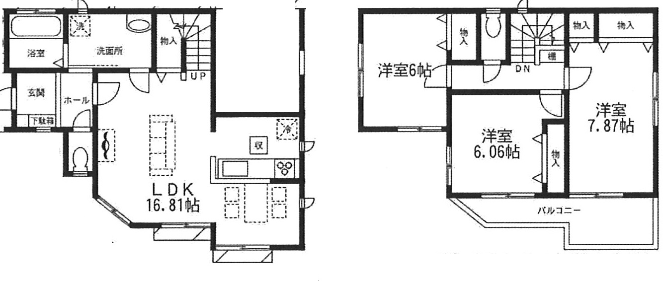
中川区高杉町新築戸建全1棟!駐車2台可能!1号棟4LDK+ロフト! 2,790万円仲介手数料0円対象物件です●あおなみ線「中島」駅徒歩10分 敷地32.50坪、平成28年8月完成。
●中島小学校・一柳中学校
本物件(仲介手数料968,760円が無料です!)費用を抑えたい方・予算が心配な方・住宅ローが心配な方・他社で住宅ローンが通らない方・是非ご相談下さい!ホームページ掲載以外の物件も仲介手数料0円ですのでお気楽にお問い合わせください!物件価格の変更及び契約済の場合がありますので予めご了承ください



ホームページ掲載物件以外にも多数物件紹介できます
検討中の物件がある方・見たい物件のある方是非一度ご相談下さい!

