BLOG
2018年09月15日 [仲介手数料無料 愛知県]
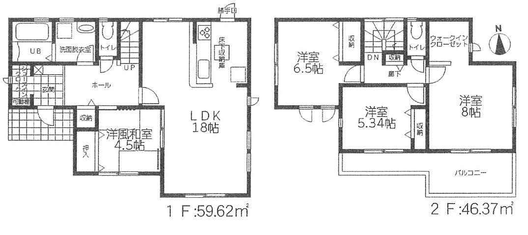
あま市新居屋久渕郷新築戸建4号棟2,699万円仲介手数料無料!

【新築・住宅・仲介手数料無料・あま市新居屋久渕郷】
あま市新居屋久渕郷新築戸建全9棟!安心のフラット35S適合取得住宅です!4号棟4LDK+ウォークインクローゼット+南側庭で日当たり良好+駐車2台可能●2,699万円●名鉄津島線「七宝」駅徒歩14分 ●敷地48.95坪、平成30年12月完成予定●甚目寺小学校・甚目寺中学校 ●本物件(仲介手数料939,276円が無料です!)費用を抑えたい方・予算が心配な方・住宅ローンが心配な方・他社で住宅ローンが通らない方・是非ご相談下さい!ホームページ掲載以外の物件も仲介手数料0円ですのでお気楽にお問い合わせください!物件価格の変更及び契約済の場合がありますので予めご了承ください。

4号棟2,669万円仲介手数料無料!


【仲介手数料が安い!】
ホームページ掲載物件以外も仲介手数料0円になりますのでお気楽にお問い合わせください!物件価格の変更及び契約済の場合はご了承ください

