BLOG
2017年09月05日 [仲介手数料無料 愛知県]
名古屋市中川区野田新築戸建1号棟3,080万円仲介手数料0円!

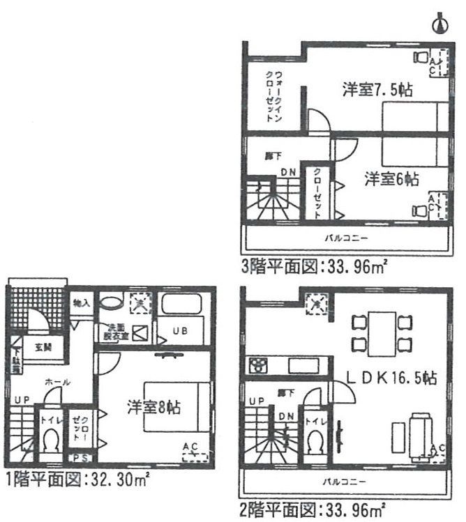
名古屋市中川区野田新築戸建全3棟!1号棟3,080万円・3LDK+都市型3階建て+ウォークインクローゼット+設計住宅性能評価耐震等級最高3取得住宅です!●地下鉄東山線「高畑」駅徒歩18分 敷地31.98坪、平成29年8月完成●野田小学校・一柳中学校 ●本物件(仲介手数料1,062,720円が無料です!)費用を抑えたい方・予算が心配な方・住宅ローンが心配な方・他社で住宅ローンが通らない方・是非ご相談下さい!ホームページ掲載以外の物件も仲介手数料0円ですのでお気楽にお問い合わせください!物件価格の変更及び契約済の場合がありますので予めご了承ください

1号棟3,080万円仲介手数料0円!


ホームページ掲載物件以外も仲介手数料0円になりますのでお気楽にお問い合わせください!物件価格の変更及び契約済の。場合はご了承ください

