BLOG
2017年08月10日 [仲介手数料無料 名古屋]
あま市坂牧郷新築戸建1号棟2,580万円仲介手数料0円!

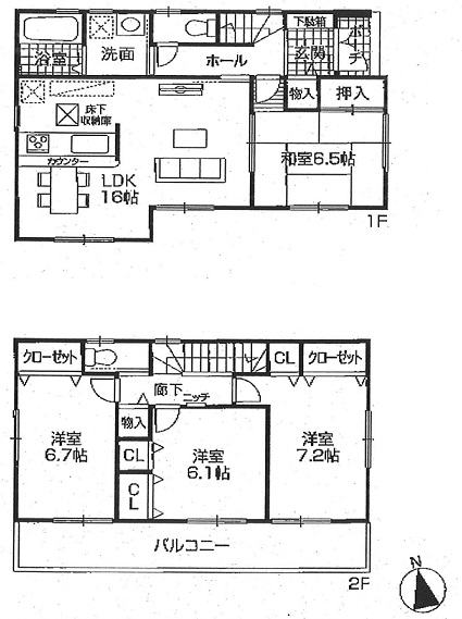
あま市坂牧郷新築戸建全2棟!1号棟2,580万円・4LDK+電子施錠スマートコントロールキー+全室南向きで日当たり良好!フラット35S省エネ基準適合で長く安心して生活できる住宅です!●名鉄津島線「甚目寺」駅徒歩23分 敷地43.87坪、平成29年4月完成●甚目寺南小学校・甚目寺南中学校 ●本物件(仲介手数料900,720円が無料です!)費用を抑えたい方・予算が心配な方・住宅ローンが心配な方・他社で住宅ローンが通らない方・是非ご相談下さい!ホームページ掲載以外の物件も仲介手数料0円ですのでお気楽にお問い合わせください!物件価格の変更及び契約済の場合がありますので予めご了承ください

1号棟2,580万円仲介手数料0円!


ホームページ掲載物件以外も仲介手数料0円になりますのでお気楽にお問い合わせください!物件価格の変更及び契約済の。場合はご了承ください

