BLOG
2020年06月28日 [仲介手数料無料 名古屋]
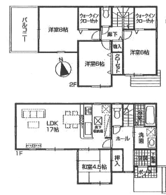
名古屋市港区本宮町新築戸建1号棟3,490万円仲介手数料無料!

【新築・住宅・仲介手数料無料・名古屋市港区本宮町】
★名古屋市港区本宮町新築戸建全2棟!フラット35S省エネルギー性適合住宅です!
●1号棟4LDK●3,490万円
●駐車並列3台可能+南側庭で日当たり良好+収納便利なウォークインクローゼットつき!
●あおなみ線「名古屋競馬場前」駅13分 ●敷地54.52坪●2020年9月完成予定
●成章小学校・港明中学校
●本物件(仲介手数料1,217,700円が無料です!)
費用を抑えたい方・予算が心配な方・住宅ローンが心配な方・他社で住宅ローンが通らない方・是非ご相談下さい!ホームページ掲載以外の物件も仲介手数料0円ですのでお気楽にお問い合わせください!物件価格の変更及び契約済の場合がありますので予めご了承ください。

3,490万円仲介手数料無料!


【仲介手数料が安い!】
ホームページ掲載物件以外も仲介手数料0円になりますのでお気楽にお問い合わせください!物件価格の変更及び契約済の場合はご了承ください。
新築住宅を安く買う方法

