BLOG
2021年06月03日 [仲介手数料無料 愛知県]
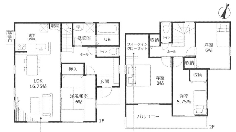
西尾市吉良町吉田新築戸建2号棟2,180万円仲介手数料無料!

【新築・住宅・仲介手数料無料・西尾市吉良町】
★西尾市吉良町吉田新築戸建全2棟!建設・設計住宅性能評価所得・耐震等級最高3です!
●2号棟4LDK●2,180万円
●駐車並列2台可能+北東角地で日当たり良好+ウォークインクローゼット!
●名鉄尾西線「吉良吉田」駅徒歩9分 ●敷地46.29坪●2021年7月完成予定!
●吉田小学校・吉良中学校
● 本物件仲介手数料(785,400円が無料です!)
費用を抑えたい方・予算が心配な方・住宅ローンが心配な方・他社で住宅ローンが通らない方・是非ご相談下さい!ホームページ掲載以外の物件も仲介手数料0円ですのでお気楽にお問い合わせください!物件価格の変更及び契約済の場合がありますので予めご了承ください。

2号棟2,180万円仲介手数料無料!


【仲介手数料が安い!】
ホームページ掲載物件以外も仲介手数料0円になりますのでお気楽にお問い合わせください!物件価格の変更及び契約済の場合はご了承ください。
新築住宅を安く買う方法

