BLOG
2020年04月23日 [仲介手数料無料 愛知県]
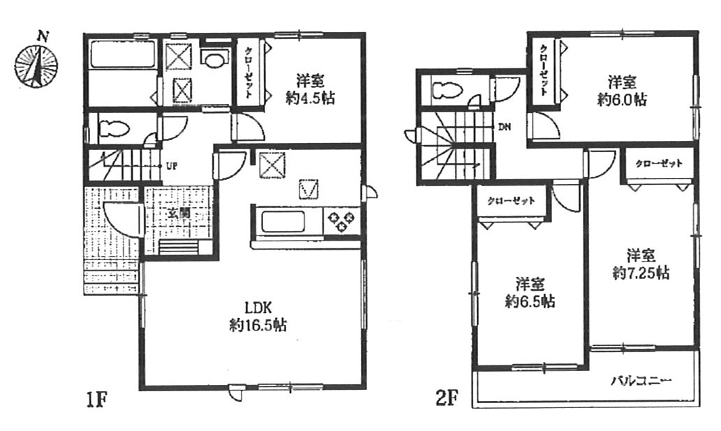
愛知県愛西市町方町新築戸建1号棟1,790万円仲介手数料無料!

【新築・住宅・仲介手数料無料・愛知県愛西市町方町】
★愛知県愛西市町方町新築戸建全2棟!設計・建設住宅性能評価所得・耐震等級最高3です!
●1号棟4LDK●1,790万円
●駐車並列2台可能+日当たり良好+6項目で最高等級を取得!
●名鉄尾西線「町方」駅徒歩7分 ●敷地39.00坪●2020年1月完成
●草平小学校・佐織西中学校
●本物件(仲介手数料656,700円が無料です!)
費用を抑えたい方・予算が心配な方・住宅ローンが心配な方・他社で住宅ローンが通らない方・是非ご相談下さい!ホームページ掲載以外の物件も仲介手数料0円ですのでお気楽にお問い合わせください!物件価格の変更及び契約済の場合がありますので予めご了承ください。

1号棟1,790万円仲介手数料無料!


【仲介手数料が安い!】
ホームページ掲載物件以外も仲介手数料0円になりますのでお気楽にお問い合わせください!物件価格の変更及び契約済の場合はご了承ください。
新築住宅を安く買う方法

