BLOG
2019年12月05日 [仲介手数料無料 愛知県]
小牧市小牧新築戸建2号棟2,480万円仲介手数料無料!

【新築・住宅・仲介手数料無料・小牧市小牧】
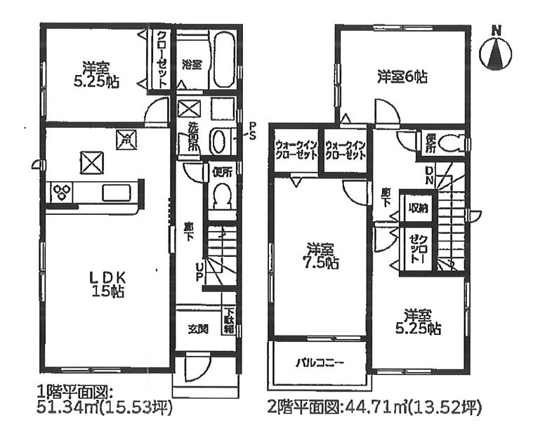
小牧市小牧新築戸建全2棟!すまい給付金対象住宅です!設計・建設性評価取得で地震に強い耐震等級最高3取得!2号棟4LDK+2ウォークインクローゼット+駐車2台可能+日当たり良好●2,480万円●名鉄小牧線「小牧」駅徒歩約15分 ●敷地40.60坪●、令和1年10月完成予定●小牧小学校・小牧中学校 ●本物件(仲介手数料884,400円が無料です!)費用を抑えたい方・予算が心配な方・住宅ローンが心配な方・他社で住宅ローンが通らない方・是非ご相談下さい!ホームページ掲載以外の物件も仲介手数料0円ですのでお気楽にお問い合わせください!物件価格の変更及び契約済の場合がありますので予めご了承ください。

2号棟2,480万円仲介手数料無料!


【仲介手数料が安い!】
ホームページ掲載物件以外も仲介手数料0円になりますのでお気楽にお問い合わせください!物件価格の変更及び契約済の場合はご了承ください

